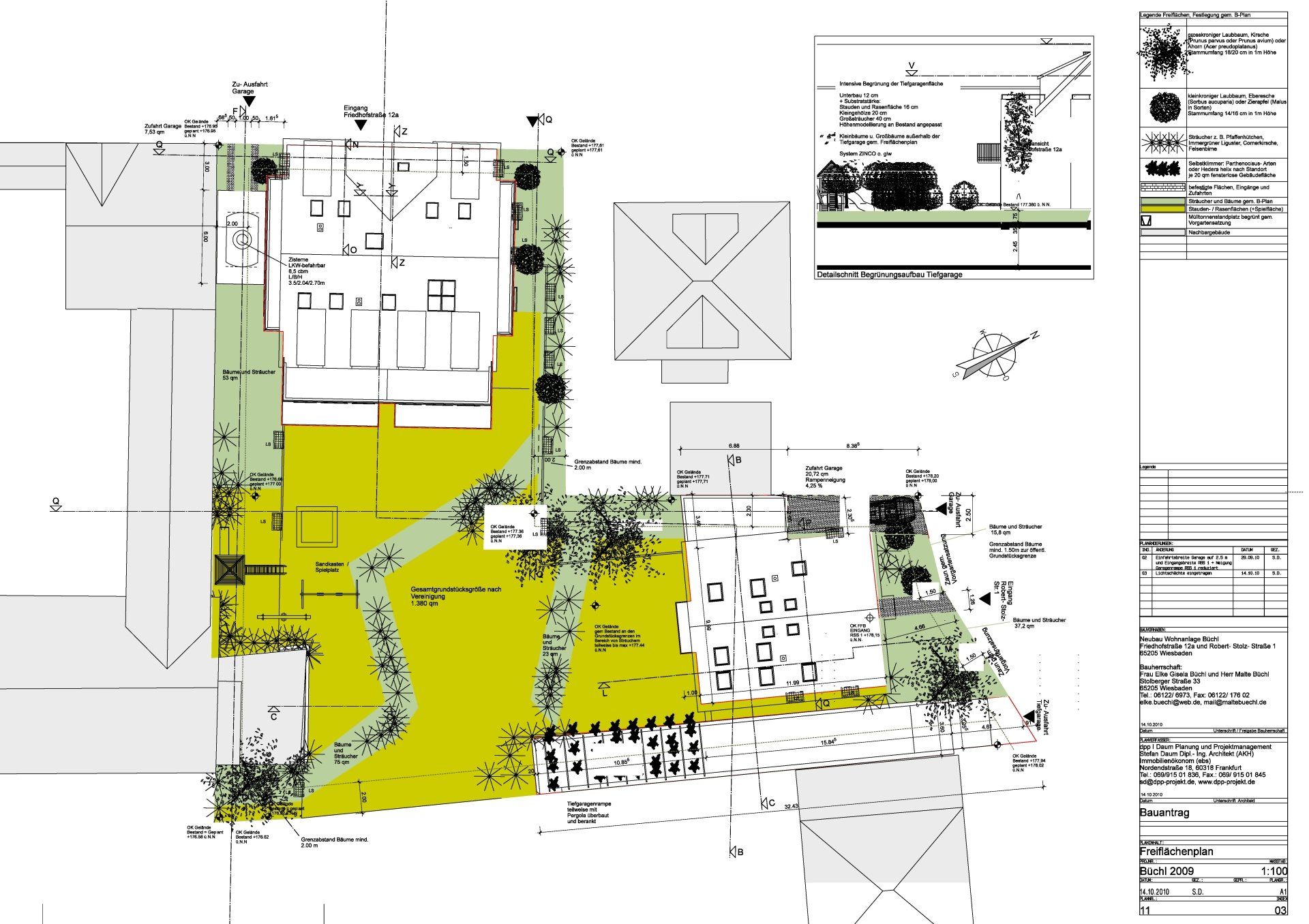
Neubau einer Wohnanlage in Wiesbaden
Neubau- / Renditeobjekt mit Tiefgarage zu Vermietungszwecken
Massivbauweise, Weiße Wanne, KS- Mauerwerk, Wärmedämmverbundsystem ...
Wohn- / Nutzfläche ca. 2.000 qm, Umbauter Raum ca. 7.200 cbm, 23 Tiefgaragenstellplätze
Starke Gestaltungsvorgaben durch den Bebauungsplan.
dpp bietet hier die komplette Leistung an, sowohl im Architekturbereich wie auch im strategischen Immobilienmanagement (Grundstückskauf, Nachbarschaftszustimmungen, Renditeberechnungen usw. .
Architektur: Alle Leistungsphasen (Planung bis Bauleitung) , Freiflächenplanung, Entwässerungsplanung
Beratungen zu: Grundstückskauf, Kosten- / Renditeberechnung, Nachbarschaftszustimmungen, Gestattungsverträge mit Nachbarn usw.
Neubau- / Renditeobjekt mit Tiefgarage zu Vermietungszwecken
Massivbauweise, Weiße Wanne, KS- Mauerwerk, Wärmedämmverbundsystem ...
Wohn- / Nutzfläche ca. 2.000 qm, Umbauter Raum ca. 7.200 cbm, 23 Tiefgaragenstellplätze
Starke Gestaltungsvorgaben durch den Bebauungsplan.
dpp bietet hier die komplette Leistung an, sowohl im Architekturbereich wie auch im strategischen Immobilienmanagement (Grundstückskauf, Nachbarschaftszustimmungen, Renditeberechnungen usw. .
Architektur: Alle Leistungsphasen (Planung bis Bauleitung) , Freiflächenplanung, Entwässerungsplanung
Beratungen zu: Grundstückskauf, Kosten- / Renditeberechnung, Nachbarschaftszustimmungen, Gestattungsverträge mit Nachbarn usw.
Bauphase und Fertigstellung
Planung






